ST NICHOLAS ANGLICAN CHURCH
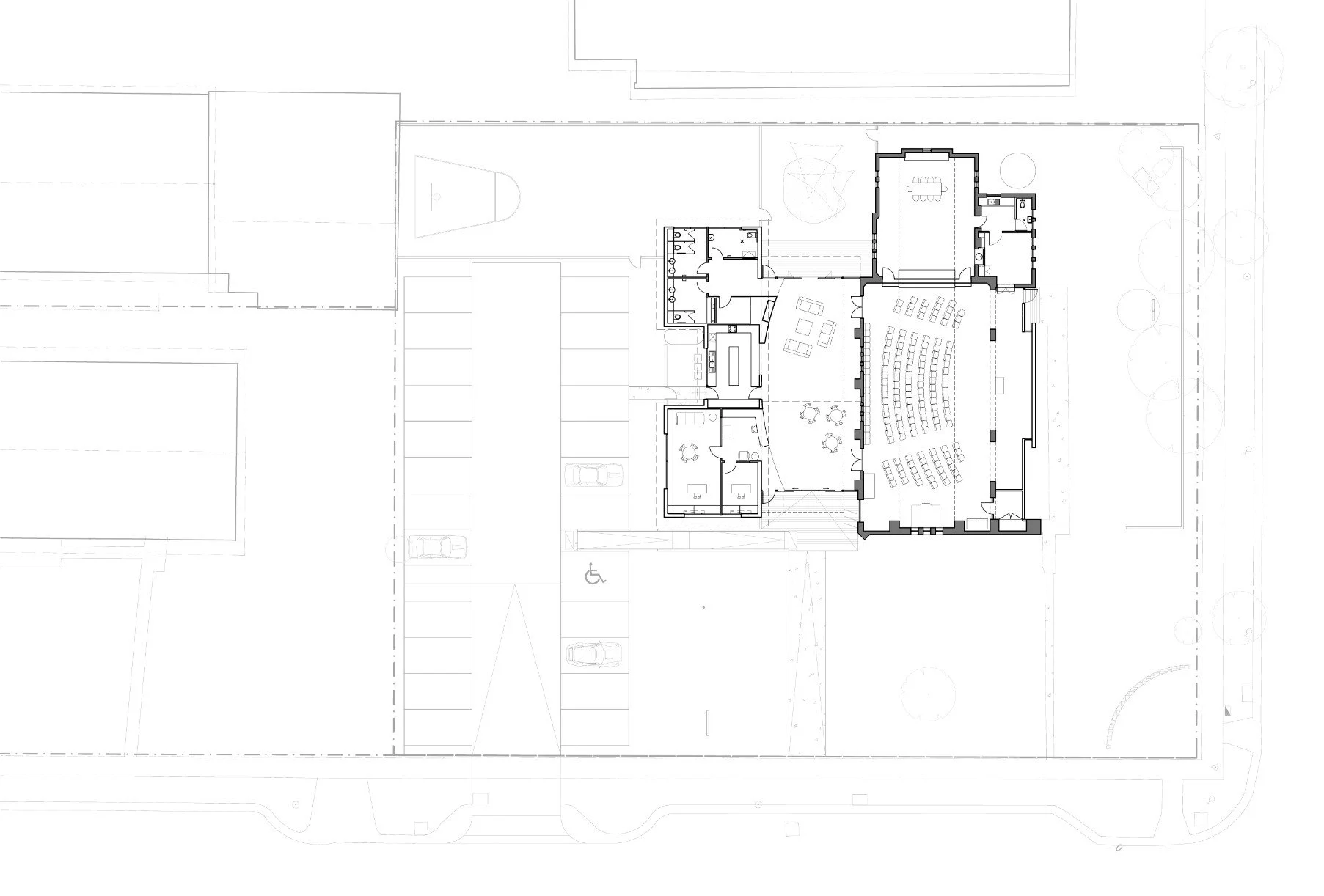
St Nicholas Anglican Church was originally designed by Louis Williams in 1919 and built in 1922. Unfortunately the works were stalled due to a lack of funds. The eastern side of the building featured arches filled in with timber walls and weatherboards, where they remained for another 88 years. Through the sale of land and its sister church in Edithvale, the building was finally given the renovation and extension required to provide the local congregation with a community space .
Client
Anglican Parish of Mordialloc
Completed
2012
Traditional Owners
Bunurong people
Project Type
Community & Worship/ Heritage
A new space for meeting
A new, clearly identifiable entrance leads visitors into the new extension, through the foyer and meeting place. The meeting place includes a fire place and opens up to a commercial kitchen which, when not in use, can be closed off with a sliding door. The extension also includes offices for the vicar and staff. The public spaces are connected to the west side of the existing church building by a glazed roof, preserving the original features including the beautiful restored stained windows.
Refurbish and re-purpose
The existing church has been given an extensive renovation and refurbishment, including realigning the worship to face east. Through the arches a new extension provides room for an altar and font. The original sanctuary has been re-purposed as a gallery dedicated to exhibitions and displays. Outside, a new memorial garden has been surrounded by a curved wall to give the garden a sense of serenity and protection from the street. In addition to the provision of on-site parking and an enclosed service yard, the planning allows for future growth and the inclusion of further meeting and gathering rooms when required. St Nicholas Anglican Church has been given a new identity and enhanced use for the congregation and community.
KDA Team
Robert Bienvenu, Karolien Vanhee, Jina Zheng, Claire Carson
Acknowledgements
Photographer
Silvi Glattauer
